Reforma Duplexok - A-cero
El proyecto es la reforma integral de un piso dúplex en un bloque de viviendas de una zona residencial de Zaragoza.
La propiedad disponía de esta vivienda en la capital zaragozana para estancias esporádicas como segunda residencia, pues en la actualidad residen en Madrid.

Se trata de un dúplex que ocupa dos últimas plantas dentro de un bloque de viviendas de 4 alturas con dos viviendas por planta. Este bloque de unos 30 años de antigüedad está situado en una zona residencial de la ciudad a modo de los planes urbanísticos típicos en los años 80 que se acometían en las urbes españolas.

El dúplex, con un aspecto obsoleto, apenas se había reformado desde su adquisición. Tenía los clichés de una vivienda de esa época en acabados y mobiliario pero deteriorados y acumulando y/o sufriendo también posteriores decoraciones y pequeñas reformas. Una peculiaridad que se tuvo que conservar fue unas persianas de fachada con grandes lamas lo cual en un principio suponía un problema de luz.

Se proyecta entonces una reforma integral. La propiedad quería un cambio radical para su vivienda, que ganara en todos los sentidos, en distribución, en luz, en diseño, en soluciones… El resultado no pudo haber sido más satisfactorio.

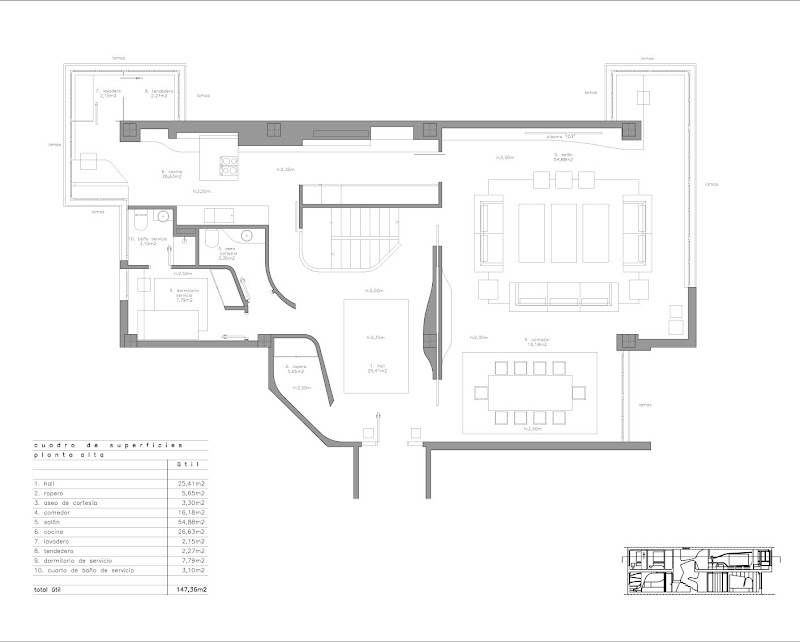
Este piso, con una superficie construida de250 m2, tiene otra peculiaridad en que su acceso se produce por la planta superior. En esta planta encontramos un gran recibidor que ya vislumbra la intención de la reforma en el resto de la casa. Solo unos cuadros con formas ad-hoc con el diseño de formas redondeadas de la pintora Mercedes Rodriguez en tonos azules y grises, junto con una alfombra también con particular forma en gris y unas bolas en acero brillo de “A-cero in” rompen la monotonía en blanco.

En el techo una apertura deja pasar luz natural por un tragaluz ya existente. Este amplio hall distribuye por un lado la zona más pública compuesta por un salón comedor de grandes dimensiones y al otro lado, un aseo de cortesía, dormitorio en suite con baño completo que bien puede ser de invitados o de servicio, y la cocina. En frente, la escultural escalera que nos llevará a las estancias mas privadas.

En el salón, como el resto de la vivienda, el blanco es protagonista. Solo en ciertos elementos como la consola en madera lacada negro de “A-cero in” los sofás modelo Ace de “A-cero in” tapizados en tono champán terciopelo rompen esa monocromía blanca.
Por otro lado, también en esta planta, se sitúa una zona mas de servicio, con un aseo de cortesía, cocina y dormitorio de servicio o invitados en suite con baño completo. La cocina, que tiene una disposición alargada, fue diseñada por A-cero a medida para su espacio, también caracterizada por el blanco, destaca la mesa de trabajo realizada en Hi-Macs negro.

La tesitura de proyecto fue la de aprovechar al máximo el espacio y optimizar la distribución de la vivienda, al mismo tiempo, se realiza un alarde de diseño e iluminación en su conjunto.
Una escalera escultural conduce a la parte inferior de la vivienda donde se sitúa el dormitorio principal en suite con su propio baño y vestidor, y otros dos dormitorios.

El hilo conductor es ganar en luminosidad y diseño. Con lo que se opta por el color blanco en paredes, suelos (de madera blanca con un lacado especial). Esto se combina con el color negro para enfatizar ciertas partes creando volúmenes escultóricos.


Arquitectos: A-cero
Ubicación: Zaragoza, Spain
Área: 250.0 m2
Año Proyecto: 2010
Fotografías: Luis H. Segovia
Proyecto: Reforma integral e interiorismo en piso dúplex
Promotor: privado
Interiorismo: A-cero

La propiedad disponía de esta vivienda en la capital zaragozana para estancias esporádicas como segunda residencia, pues en la actualidad residen en Madrid.
Se trata de un dúplex que ocupa dos últimas plantas dentro de un bloque de viviendas de 4 alturas con dos viviendas por planta. Este bloque de unos 30 años de antigüedad está situado en una zona residencial de la ciudad a modo de los planes urbanísticos típicos en los años 80 que se acometían en las urbes españolas.
El dúplex, con un aspecto obsoleto, apenas se había reformado desde su adquisición. Tenía los clichés de una vivienda de esa época en acabados y mobiliario pero deteriorados y acumulando y/o sufriendo también posteriores decoraciones y pequeñas reformas. Una peculiaridad que se tuvo que conservar fue unas persianas de fachada con grandes lamas lo cual en un principio suponía un problema de luz.
Se proyecta entonces una reforma integral. La propiedad quería un cambio radical para su vivienda, que ganara en todos los sentidos, en distribución, en luz, en diseño, en soluciones… El resultado no pudo haber sido más satisfactorio.
Este piso, con una superficie construida de250 m2, tiene otra peculiaridad en que su acceso se produce por la planta superior. En esta planta encontramos un gran recibidor que ya vislumbra la intención de la reforma en el resto de la casa. Solo unos cuadros con formas ad-hoc con el diseño de formas redondeadas de la pintora Mercedes Rodriguez en tonos azules y grises, junto con una alfombra también con particular forma en gris y unas bolas en acero brillo de “A-cero in” rompen la monotonía en blanco.
En el techo una apertura deja pasar luz natural por un tragaluz ya existente. Este amplio hall distribuye por un lado la zona más pública compuesta por un salón comedor de grandes dimensiones y al otro lado, un aseo de cortesía, dormitorio en suite con baño completo que bien puede ser de invitados o de servicio, y la cocina. En frente, la escultural escalera que nos llevará a las estancias mas privadas.
En el salón, como el resto de la vivienda, el blanco es protagonista. Solo en ciertos elementos como la consola en madera lacada negro de “A-cero in” los sofás modelo Ace de “A-cero in” tapizados en tono champán terciopelo rompen esa monocromía blanca.
Por otro lado, también en esta planta, se sitúa una zona mas de servicio, con un aseo de cortesía, cocina y dormitorio de servicio o invitados en suite con baño completo. La cocina, que tiene una disposición alargada, fue diseñada por A-cero a medida para su espacio, también caracterizada por el blanco, destaca la mesa de trabajo realizada en Hi-Macs negro.
La tesitura de proyecto fue la de aprovechar al máximo el espacio y optimizar la distribución de la vivienda, al mismo tiempo, se realiza un alarde de diseño e iluminación en su conjunto.
Una escalera escultural conduce a la parte inferior de la vivienda donde se sitúa el dormitorio principal en suite con su propio baño y vestidor, y otros dos dormitorios.
El hilo conductor es ganar en luminosidad y diseño. Con lo que se opta por el color blanco en paredes, suelos (de madera blanca con un lacado especial). Esto se combina con el color negro para enfatizar ciertas partes creando volúmenes escultóricos.
Arquitectos: A-cero
Ubicación: Zaragoza, Spain
Área: 250.0 m2
Año Proyecto: 2010
Fotografías: Luis H. Segovia
Proyecto: Reforma integral e interiorismo en piso dúplex
Promotor: privado
Interiorismo: A-cero

Unos baños de diseño preciosos, nosotros reformamos el nuestro en la casa del pueblo y gracias a la Mampara de ducha ganamos en espacio y comodidad
ResponderBorrar