Casa del Gallo en Pilar - JSZ Arquitectos
La casa se encuentra en un country en Pilar, 45 km. al norte de la ciudad de Buenos Aires. Algunos años atrás, el country decidió anexar unos terrenos destinándolos a espacios verdes y de recreación, generando ésto un cambio radical en la valoración del terreno, pasando de una situación marginal de borde, a una de mayor privilegio con excelentes visuales al entorno natural.
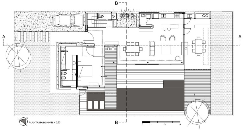
Tomando estos datos como rectores, se trabajó sobre un proyecto que lograra apropiarse de las amplias perspectivas del parque para nutrir a los ambientes de iluminación y naturaleza.Sobre un lote de 13 x 29, retirados sobre tres lados y apoyados sobre una medianera, ajustándose a las reglamentaciones del country y el municipio, la casa desarrolla una volumetría en L articulada por patios y vacíos que generan una sensación de perímetro libre.
Se proponen dos volúmenes que se abren hacia el parque y las mejores panorámicas. Un volumen bajo y lineal alberga las areas más públicas, y acompaña en forma apaisada y paralela un vacío propio donde se ubican la pileta, galería y el jardín. La altura de éste permite dado su desarrollo y volumetría lograr un muy buen asoleamiento, aun en épocas invernales.
El otro volumen, compacto y en dos plantas, resuelve baños y dormitorios, dejando el principal en planta baja y en relación directa con la pileta a pedido expreso del comitente.
La estructura se pensó de hormigón sin vigas para enfatizar los planos horizontales que permiten carpinterías de 2.80m. de piso a techo incorporando el espacio exterior. Unas esbeltas columnas metálicas en el estar comedor, así como los encuentros vidrio con vidrio en las esquinas refuerzan esta voluntad por desmaterializar y adueñarse del paisaje.
Información técnica
Proyecto y dirección: JSZ Arquitectos - Arq. Diego Jason - Arq. Martín Sprintzick
Colaborador: Arq. Pablo Slomianski
Superficie: 210 m2 cubiertos - 70 m2 semicubiertos
Duración de la obra: mayo 2007 - marzo 2008
FUENTE: TECNOHAUS
Tomando estos datos como rectores, se trabajó sobre un proyecto que lograra apropiarse de las amplias perspectivas del parque para nutrir a los ambientes de iluminación y naturaleza.Sobre un lote de 13 x 29, retirados sobre tres lados y apoyados sobre una medianera, ajustándose a las reglamentaciones del country y el municipio, la casa desarrolla una volumetría en L articulada por patios y vacíos que generan una sensación de perímetro libre.
Se proponen dos volúmenes que se abren hacia el parque y las mejores panorámicas. Un volumen bajo y lineal alberga las areas más públicas, y acompaña en forma apaisada y paralela un vacío propio donde se ubican la pileta, galería y el jardín. La altura de éste permite dado su desarrollo y volumetría lograr un muy buen asoleamiento, aun en épocas invernales.
El otro volumen, compacto y en dos plantas, resuelve baños y dormitorios, dejando el principal en planta baja y en relación directa con la pileta a pedido expreso del comitente.
La estructura se pensó de hormigón sin vigas para enfatizar los planos horizontales que permiten carpinterías de 2.80m. de piso a techo incorporando el espacio exterior. Unas esbeltas columnas metálicas en el estar comedor, así como los encuentros vidrio con vidrio en las esquinas refuerzan esta voluntad por desmaterializar y adueñarse del paisaje.
Información técnica
Proyecto y dirección: JSZ Arquitectos - Arq. Diego Jason - Arq. Martín Sprintzick
Colaborador: Arq. Pablo Slomianski
Superficie: 210 m2 cubiertos - 70 m2 semicubiertos
Duración de la obra: mayo 2007 - marzo 2008
FUENTE: TECNOHAUS


































Post a Comment