Casa Chalú - Adamo-Faiden Arquitectos
Los arquitectos argentinos Adamo-Faiden han ejecutado el "reciclaje" de la Casa Chalú en Buenos Aires. Una casa que tiene como rasgo más característico la piel exterior a base de cristales rotos de botella mezclados con un mortero blanco y unas ventanas con paneles de vidrio a ras de la fachada.
Las denominadas “Casas Chorizo” constituyeron una de las tipologías más sistematizadas en la Buenos Aires de principios del siglo XX. Construidas en parcelas urbanas muy estrechas y profundas, se organizaban mediante un único corredor que comunicaba con todas unidades que, en aquel entonces, arrendaban oleadas de inmigrantes europeos. Fue precisamente su estructuración longitudinal y repetitiva lo que dio origen a su nombre.
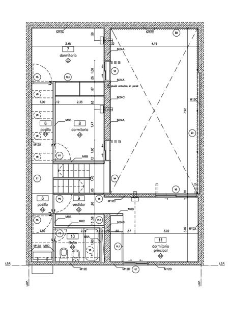
La familia Chalú entendió que recuperar una de estas unidades les daría la oportunidad de vivir en una casa ubicada en el centro de una manzana y, a su vez, en el centro de la ciudad, por menos de la mitad del valor que indica el mercado inmobiliario.De la casa original fue posible reutilizar su organización en “L” alrededor del patio, sus fundaciones y con ella los muros de cerramiento y carga que configuraban un espacio único de 5,10m de altura.
El volumen del programa de necesidades exigió la construcción de un entrepiso únicamente interrumpido por una escalera que comunica las áreas comunes con las habitaciones de cada integrante de la familia.
La voluntad de introducir luz indirecta en el patio sumado a un presupuesto ajustado trajo aparejado un segundo reciclaje asociado esta vez a una técnica de revestimiento local olvidada por décadas como el revoque de cuarzo.
En su lugar, se optó por triturar in situ botellas de vidrio transparente hasta lograr piezas de dimensiones similares a las de cuarzo. Unas vez fijadas y pulidas sobre una base de 2cm de cemento blanco se obtuvo un dispositivo económico, de ejecución robusta y mantenimiento nulo, capaz de hacernos olvidar por un momento el reflejo plano ligado a la técnica de flotado del vidrio para recuperar en este patio la dimensión orgánica del cristal en forma de destellos irregulares que aparecen y desaparecen siempre de manera distinta.
Las denominadas “Casas Chorizo” constituyeron una de las tipologías más sistematizadas en la Buenos Aires de principios del siglo XX. Construidas en parcelas urbanas muy estrechas y profundas, se organizaban mediante un único corredor que comunicaba con todas unidades que, en aquel entonces, arrendaban oleadas de inmigrantes europeos. Fue precisamente su estructuración longitudinal y repetitiva lo que dio origen a su nombre.
La familia Chalú entendió que recuperar una de estas unidades les daría la oportunidad de vivir en una casa ubicada en el centro de una manzana y, a su vez, en el centro de la ciudad, por menos de la mitad del valor que indica el mercado inmobiliario.De la casa original fue posible reutilizar su organización en “L” alrededor del patio, sus fundaciones y con ella los muros de cerramiento y carga que configuraban un espacio único de 5,10m de altura.
El volumen del programa de necesidades exigió la construcción de un entrepiso únicamente interrumpido por una escalera que comunica las áreas comunes con las habitaciones de cada integrante de la familia.
La voluntad de introducir luz indirecta en el patio sumado a un presupuesto ajustado trajo aparejado un segundo reciclaje asociado esta vez a una técnica de revestimiento local olvidada por décadas como el revoque de cuarzo.
En su lugar, se optó por triturar in situ botellas de vidrio transparente hasta lograr piezas de dimensiones similares a las de cuarzo. Unas vez fijadas y pulidas sobre una base de 2cm de cemento blanco se obtuvo un dispositivo económico, de ejecución robusta y mantenimiento nulo, capaz de hacernos olvidar por un momento el reflejo plano ligado a la técnica de flotado del vidrio para recuperar en este patio la dimensión orgánica del cristal en forma de destellos irregulares que aparecen y desaparecen siempre de manera distinta.









Post a Comment