Casa Altavista - DA4 Arquitectos
Pese a estar ubicada encima de una colina de fuertes pendientes, esta vivienda no se resuelve como la tÃpica casa de madera. DA4 Arquitectos crea un auténtico mirador hacia el mar, a base de geometrÃa triangular y buscando un diálogo constante con el entorno, donde los únicos planos horizontales son el piso, y a veces ni eso.
Ubicada en lo alto de un cerro en medio de abruptas pendientes la casa se emplaza valorando el espacio exterior. La terraza con vista al mar pasa a ser el espacio principal de la casa, ubicándose en su centro, dejando los demás recintos en torno a ella.
En relación a la orientación de los volúmenes, se consideraron las horas de uso de los recintos; mientras el volumen de los dormitorios se orienta en dirección nor-oriente de modo de aprovechar el sol de la mañanas, el volumen de los recintos de uso más público se orienta hacia el norte.
El juego de niveles que tiene el proyecto genera una gran dinámica en las cubiertas, estando presentes en casi todas las instancias, naciendo del nivel de la terraza y subiendo en torno a ella hasta superar los 4mt de altura, lo cual lleva a tratar su superficie como un tema importante.
Es muy singular la manera en la que se adaptan esos grandes ventanales, llegando hasta el encuentro con el plano inclinado de la cubierta, es sin duda un acierto técnico y compositivo.
Se optó por una cubierta vegetal dispuesta en un sustrato compuesto de arena, ripio de canto rodado y algo de materia vegetal. De esta forma, Las docas, especie presente en toda la zona costera central chilena, atenúan la radiación directa sobre el volumen de los dormitorios, integrando la casa al paisaje, exaltando su vocación topográfica.
Tanto su estructura como la gran parte de elementos de fachada y revestimientos interiores, son de madera. Principalmente pino radiata, y madera raulà para las carpinterÃas. Amplios huecos, muchos de ellos hasta la cubierta, hacen que toda la casa disponga de unas estupendas vistas hacia este entorno idÃlico y de grandes entradas de luz hacia su interior.
El paso desde el salón hacia el cuerpo donde están los dormitorios, se realiza saliendo al exterior, según se aprecia en el dibujo de planta y en la foto superior a este párrafo. Tal vez se trate de una parte por completar, pues ahora mismo presenta sus inconvenientes frente a las inclemencias del tiempo.
Arquitectos: DA4 Arquitectos
Felipe Durán Palma (Arquitecto PUC, Mphil. U. Cambridge)
Javier Durán Palma (Arquitecto PUC, Master U. Politécnica de Madrid)
Diego Pedraza Plaza (Arquitecto PUC)
Dirección Obispo Donoso 5 oficina 62, Providencia, Santiago, Chile.
Ubicación Obra: Condominio Altavista, Sitio 35, Comuna de Zapallar, V Región, Chile.
Materialidad: Madera (pino radiata, ventanas de raulÃ)
Año: 2003-2004.
Superficie Construida: 133 m²
Superficie Terreno: 5000 m²
Arquitectos a cargo: Javier Durán Palma y Felipe Durán Palma
Colaborador: Marco Antonio Palma (Escultor)
Cálculo Estructural: Eduardo Valenzuela S.
Constructora: Constructora Diagonal Ltda.
FotografÃa: Felipe Durán Palma
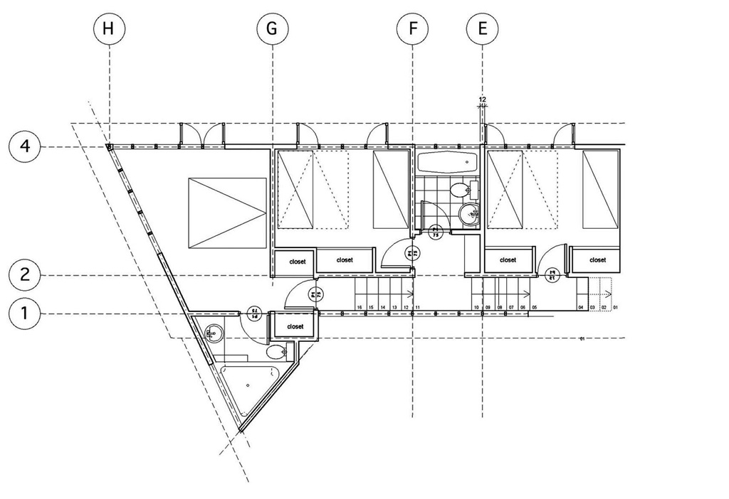
Ubicada en lo alto de un cerro en medio de abruptas pendientes la casa se emplaza valorando el espacio exterior. La terraza con vista al mar pasa a ser el espacio principal de la casa, ubicándose en su centro, dejando los demás recintos en torno a ella.
La planta de forma triangular distribuye el programa en dos volumenes.
El primer volumen sigue la cota del cerro, en el mismo plano de la terraza, y acoge los programas más públicos de la casa: el living, el comedor y la cocina.
El segundo volumen se emplaza en contra de la pendiente, bajando junto a ella en cuatro diferentes niveles, en los cuales se ubican los dormitorios. De esta manera se logra un centro protegido del viento, logrando que el unico lado abierto del triángulo concentre las vistas hacia el mar.
El primer volumen sigue la cota del cerro, en el mismo plano de la terraza, y acoge los programas más públicos de la casa: el living, el comedor y la cocina.
El segundo volumen se emplaza en contra de la pendiente, bajando junto a ella en cuatro diferentes niveles, en los cuales se ubican los dormitorios. De esta manera se logra un centro protegido del viento, logrando que el unico lado abierto del triángulo concentre las vistas hacia el mar.
En relación a la orientación de los volúmenes, se consideraron las horas de uso de los recintos; mientras el volumen de los dormitorios se orienta en dirección nor-oriente de modo de aprovechar el sol de la mañanas, el volumen de los recintos de uso más público se orienta hacia el norte.
El juego de niveles que tiene el proyecto genera una gran dinámica en las cubiertas, estando presentes en casi todas las instancias, naciendo del nivel de la terraza y subiendo en torno a ella hasta superar los 4mt de altura, lo cual lleva a tratar su superficie como un tema importante.
Es muy singular la manera en la que se adaptan esos grandes ventanales, llegando hasta el encuentro con el plano inclinado de la cubierta, es sin duda un acierto técnico y compositivo.
Se optó por una cubierta vegetal dispuesta en un sustrato compuesto de arena, ripio de canto rodado y algo de materia vegetal. De esta forma, Las docas, especie presente en toda la zona costera central chilena, atenúan la radiación directa sobre el volumen de los dormitorios, integrando la casa al paisaje, exaltando su vocación topográfica.
Tanto su estructura como la gran parte de elementos de fachada y revestimientos interiores, son de madera. Principalmente pino radiata, y madera raulà para las carpinterÃas. Amplios huecos, muchos de ellos hasta la cubierta, hacen que toda la casa disponga de unas estupendas vistas hacia este entorno idÃlico y de grandes entradas de luz hacia su interior.
El paso desde el salón hacia el cuerpo donde están los dormitorios, se realiza saliendo al exterior, según se aprecia en el dibujo de planta y en la foto superior a este párrafo. Tal vez se trate de una parte por completar, pues ahora mismo presenta sus inconvenientes frente a las inclemencias del tiempo.
Arquitectos: DA4 Arquitectos
Felipe Durán Palma (Arquitecto PUC, Mphil. U. Cambridge)
Javier Durán Palma (Arquitecto PUC, Master U. Politécnica de Madrid)
Diego Pedraza Plaza (Arquitecto PUC)
Dirección Obispo Donoso 5 oficina 62, Providencia, Santiago, Chile.
Ubicación Obra: Condominio Altavista, Sitio 35, Comuna de Zapallar, V Región, Chile.
Materialidad: Madera (pino radiata, ventanas de raulÃ)
Año: 2003-2004.
Superficie Construida: 133 m²
Superficie Terreno: 5000 m²
Arquitectos a cargo: Javier Durán Palma y Felipe Durán Palma
Colaborador: Marco Antonio Palma (Escultor)
Cálculo Estructural: Eduardo Valenzuela S.
Constructora: Constructora Diagonal Ltda.
FotografÃa: Felipe Durán Palma

































Post a Comment