S. Roque Casa I - Bruno Armando Gomes Marques
Esta casa está situada en Oliveira de Azeméis, concretamente en la ciudad de San Roque. El terreno se encuentra entre dos caminos, uno hacia el sur y el otro hacia el norte, que lo delimitan y determinan la disposición de la vivienda.
Ésta se construye de dos volúmenes con programas distintos, y una superficie total de 600 m2. En el volumen del nivel 0, que actúa como base y es mucho más regular, se desarrolla el área más social con el siguiente programa: hall de acceso, sala de estar/comedor, cocina, servicios y una oficina con baño.


Arriba, se desarrolla un área más privada de habitaciones. Cada habitación define la forma de cuña de los dos volúmenes con diferentes puntos de vista desde cada una de ellas, en una estrategia claramente distinta de la del volumen bajo.


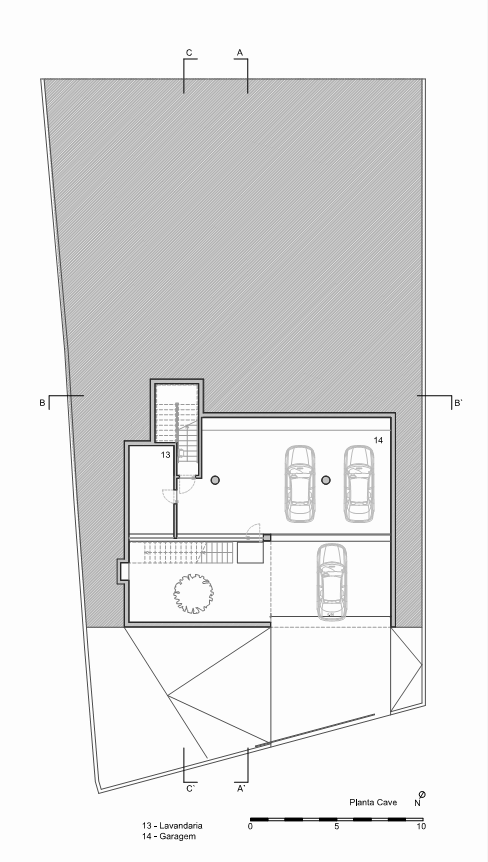
La diferencia de altura entre los dos caminos a los que se enfrenta el terreno sólo permiten dos niveles hacia el lado sur, mientras que en el lado norte se añadió un tercer nivel subterráneo para el lavadero y el garage bajo una cubierta verde. Así, el programa está completo y se logra mitigar el impacto que podrían traer las tres plantas en los alrededores.


El volumen de la base tiene un formato estricto, de color gris sobre una plataforma verde, que contrasta con el volumen más íntimo de las habitaciones a través de la forma dinámica de sus tres cuerpos de color blanco, que se superponen parcialmente.















Arquitectos: Bruno Armando Gomes Marques
Ubicación: 3720 Oliveira de Azeméis, Portugal
Año Proyecto: 2011
Colaboradores: Gonçalo Freitas, Rita Cunha
Especializaciones: Ponte Urbana, Ltd
Fotografías: Miguel Coelho











Ésta se construye de dos volúmenes con programas distintos, y una superficie total de 600 m2. En el volumen del nivel 0, que actúa como base y es mucho más regular, se desarrolla el área más social con el siguiente programa: hall de acceso, sala de estar/comedor, cocina, servicios y una oficina con baño.
Arriba, se desarrolla un área más privada de habitaciones. Cada habitación define la forma de cuña de los dos volúmenes con diferentes puntos de vista desde cada una de ellas, en una estrategia claramente distinta de la del volumen bajo.
La diferencia de altura entre los dos caminos a los que se enfrenta el terreno sólo permiten dos niveles hacia el lado sur, mientras que en el lado norte se añadió un tercer nivel subterráneo para el lavadero y el garage bajo una cubierta verde. Así, el programa está completo y se logra mitigar el impacto que podrían traer las tres plantas en los alrededores.
El volumen de la base tiene un formato estricto, de color gris sobre una plataforma verde, que contrasta con el volumen más íntimo de las habitaciones a través de la forma dinámica de sus tres cuerpos de color blanco, que se superponen parcialmente.
Arquitectos: Bruno Armando Gomes Marques
Ubicación: 3720 Oliveira de Azeméis, Portugal
Año Proyecto: 2011
Colaboradores: Gonçalo Freitas, Rita Cunha
Especializaciones: Ponte Urbana, Ltd
Fotografías: Miguel Coelho


Post a Comment