3 Casas en Maitencillo - SML arquitectos
El encargo consistió en el diseño de tres cabañas en el balneario de Maitencillo en un sitio de 15 x 35 mts cuyo lado angosto enfrenta al Océano Pacífico. El proyecto debía garantizar la independencia y las vistas de cada una de las cabañas, manteniendo al mismo tiempo un diseño unitario del conjunto. Es decir debía, de ser necesario, funcionar indistintamente como una sola gran casa o tres viviendas independientes. Adicionalmente se debía respetar un presupuesto ajustado y un plazo de ejecución reducido.
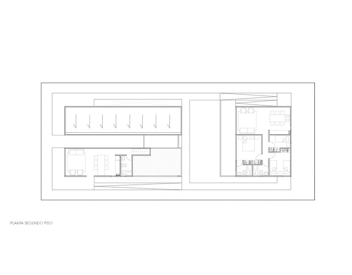
Se propone crear un suelo continuo en base a rampas y pasarelas que toman el nivel natural del terreno en el punto de acceso al sitio como cota 0 y conducen a los distintos accesos de cada una de las unidades. Debido a la estrechez del predio, se ubican dos cabañas gemelas de 60 m2 enfrentando al océano y la tercera, de 70 m2 en la parte trasera. La unidad más grande y parte de una de las delanteras se elevan con respecto a la cota 0, de modo de lograr tener una visión despejada al mar por sobre las edificaciones vecinas.

Esta operación no sólo permite acceder a las vistas sino que además le otorga independencia a cada unidad con respecto a las otras, ya que el nivel de suelo de cada una es diferente.

El sistema de rampas, a su vez, le otorga continuidad al conjunto y permite apreciarlo de forma unitaria dejando en el espacio central del sitio una zona común que distribuye los accesos a las distintas cabañas.

Las fachadas se trabajaron con revestimientos económicos utilizando una combinación de listones de pino, placas de fibrocemento pintado negro y vidrio. Materiales que fueron dispuestos en un patrón de franjas con un módulo base de 60 cms. que recorre todo el perímetro del proyecto.






Arquitectos: Somigli-Moreno-Lama arquitectos (Juan Sebastián Lama, Felipe Moreno, Franco Somigli)
Ubicación: Maitencillo, Puchuncaví, Valparaíso Región, Chile
Área: 190.0 m2
Año Proyecto: 2011
Constructor: Manuel Arredondo
Fotografías: Juan Sebastián Lama, Franco Somigli






Se propone crear un suelo continuo en base a rampas y pasarelas que toman el nivel natural del terreno en el punto de acceso al sitio como cota 0 y conducen a los distintos accesos de cada una de las unidades. Debido a la estrechez del predio, se ubican dos cabañas gemelas de 60 m2 enfrentando al océano y la tercera, de 70 m2 en la parte trasera. La unidad más grande y parte de una de las delanteras se elevan con respecto a la cota 0, de modo de lograr tener una visión despejada al mar por sobre las edificaciones vecinas.
Esta operación no sólo permite acceder a las vistas sino que además le otorga independencia a cada unidad con respecto a las otras, ya que el nivel de suelo de cada una es diferente.
El sistema de rampas, a su vez, le otorga continuidad al conjunto y permite apreciarlo de forma unitaria dejando en el espacio central del sitio una zona común que distribuye los accesos a las distintas cabañas.
Las fachadas se trabajaron con revestimientos económicos utilizando una combinación de listones de pino, placas de fibrocemento pintado negro y vidrio. Materiales que fueron dispuestos en un patrón de franjas con un módulo base de 60 cms. que recorre todo el perímetro del proyecto.
Arquitectos: Somigli-Moreno-Lama arquitectos (Juan Sebastián Lama, Felipe Moreno, Franco Somigli)
Ubicación: Maitencillo, Puchuncaví, Valparaíso Región, Chile
Área: 190.0 m2
Año Proyecto: 2011
Constructor: Manuel Arredondo
Fotografías: Juan Sebastián Lama, Franco Somigli

Post a Comment