Casa NA - Sou Fujimoto
Descrita como "una unidad entre la separación y la coherencia", la casa actúa al mismo tiempo como una habitación individual y como una colección de habitaciones. El programa - definido vagamente - genera superficies para una serie de actividades que se puede llevar a diferentes escalas. La casa ofrece espacios de intimidad y también espacios grupales, distribuyendo a las personas a través de la casa.
Sou Fujimoto comenta: "El punto intrigantes de un árbol es que sus lugares no están aislados herméticamente, se conectan a otro en una única relatividad. Escuchar la voz de otra persona desde otro lado y desde arriba, estos son los momentos ricos que se encuentran a través de una densa espacialidad de vida".
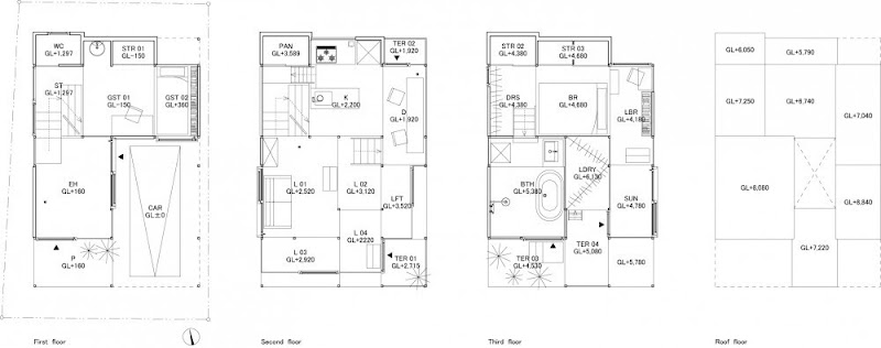
Cada piso está vinculado por una serie de escaleras y escalas, así como por recorridos cortos de pasos fijos y móviles. Los niveles estratificados a manera de muebles permiten que la estructura sirva para muchas funciones.

Los tramos cortos permiten el angostamiento de la estructura de acero blanco, completada por un suelo de madera de Abedul teñida de blanco. Las instalaciones son incorporadas a la estructura, como la calefacción en los pisos, mientras que las aberturas dispuestas estratégicamente permiten maximizar el flujo de aire y entregan ventilación y refrigeración durante el verano.
El equipo de climatización y fontanería, se encuentran en el muro trasero de la casa que mira al norte. Otros soportes laterales se han dispuesto construyendo una estantería de suelo a techo y de peso ligero, con paneles de hormigón integrados.
Arquitectos: Sou Fujimoto
Ubicación: Tokyo, Japan
Área: 85.0 m2
Año Proyecto: 2010
Superficie del Terreno: 55 m2
Fotografías: Iwan Baan






Sou Fujimoto comenta: "El punto intrigantes de un árbol es que sus lugares no están aislados herméticamente, se conectan a otro en una única relatividad. Escuchar la voz de otra persona desde otro lado y desde arriba, estos son los momentos ricos que se encuentran a través de una densa espacialidad de vida".

Cada piso está vinculado por una serie de escaleras y escalas, así como por recorridos cortos de pasos fijos y móviles. Los niveles estratificados a manera de muebles permiten que la estructura sirva para muchas funciones.


Los tramos cortos permiten el angostamiento de la estructura de acero blanco, completada por un suelo de madera de Abedul teñida de blanco. Las instalaciones son incorporadas a la estructura, como la calefacción en los pisos, mientras que las aberturas dispuestas estratégicamente permiten maximizar el flujo de aire y entregan ventilación y refrigeración durante el verano.

El equipo de climatización y fontanería, se encuentran en el muro trasero de la casa que mira al norte. Otros soportes laterales se han dispuesto construyendo una estantería de suelo a techo y de peso ligero, con paneles de hormigón integrados.
Arquitectos: Sou Fujimoto
Ubicación: Tokyo, Japan
Área: 85.0 m2
Año Proyecto: 2010
Superficie del Terreno: 55 m2
Fotografías: Iwan Baan








Post a Comment