Ático reformado en Valencia - DG Arquitecto
Dos eran los temas que preocupaban a los propietarios de este ático, ubicado en Valencia: mantener la mayor altura posible (unos 3,20 m) y poder contar con tres habitaciones, dos baños y la terraza que había sido eliminada, en parte, por los anteriores dueños.
Los encargados de materializar estos deseos fueron los arquitectos Daniel González e Isabel Roger. Los responsables del estudio DG Arquitecto introdujeron en su proyecto de reforma todas estas peticiones para conseguir de una forma “sencilla y directa” la solución final que mejor se adaptara al lugar y a las necesidades de sus clientes, una joven pareja con un hijo.
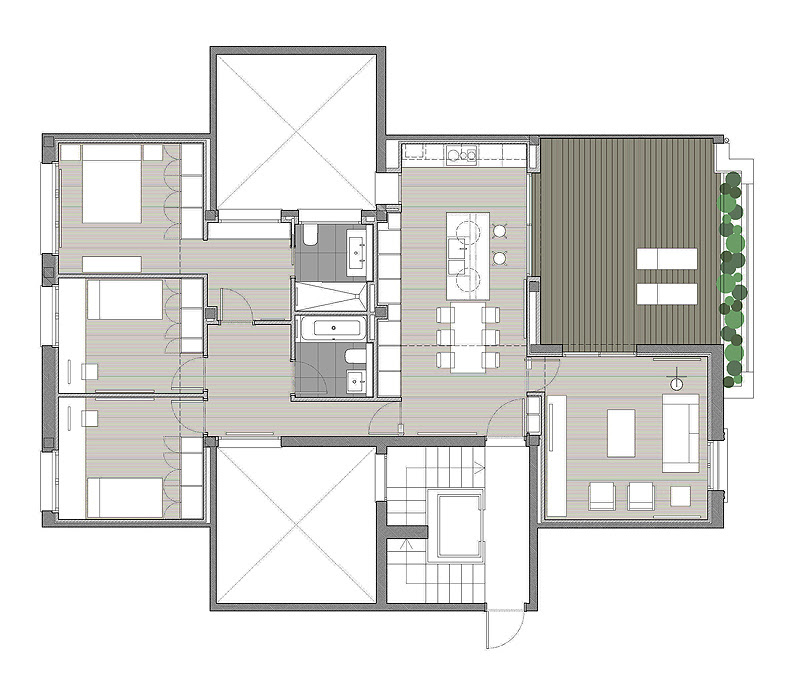
A pesar de intentar mantener los 3,20 en todos los espacios, la existencia de tres pórticos de 2,70 m de altura modificó la idea inicial. Sin embargo, lo que parecía un inconveniente sirvió, junto a las fachadas, para delimitar tres zonas en la vivienda: zona día (cocina, estar y terraza), zona de relación (baños, vestidor y distribuidor) y zona de noche (habitaciones).
Los arquitectos crearon un gran espacio central, por el que se accede a la vivienda, ocupado por la cocina y el comedor que, junto al salón, forman la zona de día. La terraza adquirió la importancia que se merecía y se integró visualmente en esta parte de la casa, que ya disfruta de ella.
Los baños, un vestidor y el distribuidor de las habitaciones (la llamada zona de relación) son los únicos espacios en los que disminuye la altura. Lo que sirvió para resolver el tema de la climatización y todas las instalaciones de la vivienda sin que afectara a la altura de los espacios más importantes.
Tres dormitorios, uno principal en suite y dos con un baño común, forman la zona noche y están iluminados a través del patio de manzana.
Proyecto: Reforma de un ático.
Localización: Valencia (España).
Año: 2014.
Arquitectos: DG Arquitecto Valencia: Isabel Roger Sánchez + Daniel González López.
Constructora: ELO construcciones.
Cocina: Buraglia.
Fotografías: Mariela Apollonio (www.fotografadearquitectura.com)
Los encargados de materializar estos deseos fueron los arquitectos Daniel González e Isabel Roger. Los responsables del estudio DG Arquitecto introdujeron en su proyecto de reforma todas estas peticiones para conseguir de una forma “sencilla y directa” la solución final que mejor se adaptara al lugar y a las necesidades de sus clientes, una joven pareja con un hijo.
A pesar de intentar mantener los 3,20 en todos los espacios, la existencia de tres pórticos de 2,70 m de altura modificó la idea inicial. Sin embargo, lo que parecía un inconveniente sirvió, junto a las fachadas, para delimitar tres zonas en la vivienda: zona día (cocina, estar y terraza), zona de relación (baños, vestidor y distribuidor) y zona de noche (habitaciones).
Los arquitectos crearon un gran espacio central, por el que se accede a la vivienda, ocupado por la cocina y el comedor que, junto al salón, forman la zona de día. La terraza adquirió la importancia que se merecía y se integró visualmente en esta parte de la casa, que ya disfruta de ella.
Los baños, un vestidor y el distribuidor de las habitaciones (la llamada zona de relación) son los únicos espacios en los que disminuye la altura. Lo que sirvió para resolver el tema de la climatización y todas las instalaciones de la vivienda sin que afectara a la altura de los espacios más importantes.
Tres dormitorios, uno principal en suite y dos con un baño común, forman la zona noche y están iluminados a través del patio de manzana.
Proyecto: Reforma de un ático.
Localización: Valencia (España).
Año: 2014.
Arquitectos: DG Arquitecto Valencia: Isabel Roger Sánchez + Daniel González López.
Constructora: ELO construcciones.
Cocina: Buraglia.
Fotografías: Mariela Apollonio (www.fotografadearquitectura.com)












Gracias por compartir nuestro trabajo, os agradeceríamos que pusierais un enlace a nuestra web en el post! Un saludo y de nuevo gracias
ResponderBorrarCon todo gusto, déjame tu enlace por favor
BorrarLa web de nuestro estudio es: https://dgarquitecto.blogspot.com/ Muchas gracias!
Borrar