Header Ads

Villa Criss-Cross - OFIS Architects


La Villa se encuentra en los suburbios Mirje dentro del centro de la ciudad de Ljubljana, Eslovenia. La calle de la villa se extiende perpendicularmente a la antigua muralla romana y continúa en un paso peatonal bajo la pirámide de piedra diseñada por Plecnik (como parte de su proyecto de reconstrucción a lo largo del muro).

Villa Criss-Cross - OFIS Architects

La nueva estructura de la Villa se incrusta en un muro de contención existente a lo largo del frente de la calle. Mediante la incorporación del muro como parte de la nueva construcción, la nueva casa mantiene su posición original en esta calle, alineada de forma axial a la pirámide.

Villa Criss-Cross - OFIS Architects

Villa Criss-Cross - OFIS Architects

Villa Criss-Cross - OFIS Architects

La estructura externa está compuesta por un volumen en forma de cubo y un envolvente metálico perforado. Los cortes extractados del volumen crean espacios bolsillos que proporcionan una forma de pirámide a lo largo del techo, un vacío a lo largo de los dos patios privados con terrazas para las áreas de vida en la casa. El uso de un material con orificios a ambos lados tiene como objetivo hacer una interpretación abstracta de la textura de las clásicas villas en el barrio histórico.

Villa Criss-Cross - OFIS Architects

Villa Criss-Cross - OFIS Architects

Villa Criss-Cross - OFIS Architects

Villa Criss-Cross - OFIS Architects

La clásica y aspera fachada fue representada con paneles dobles perforados; la tarea era lograr la textura a través de la ilusión de profundidad que permite la presencia de luz y mejora las sombras y los reflejos de una paleta de tonos beige. La textura tridimensional crea una dinámico abstracción mientras encapsula su volumen coherente. Cruces diagonales actúan como una representación funcional y gráfica. Las cruces dan soporte a los marcos de los paneles y crean una identidad como los adornos en las fachadas de las históricas villas.

Villa Criss-Cross - OFIS Architects

Villa Criss-Cross - OFIS Architects

Villa Criss-Cross - OFIS Architects

Villa Criss-Cross - OFIS Architects

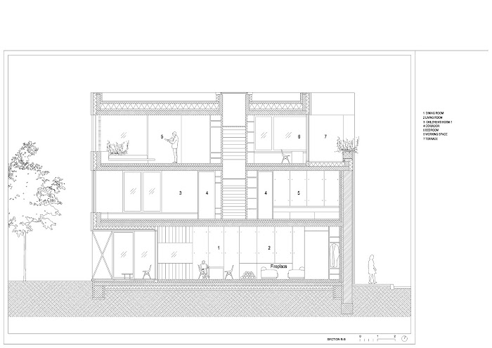
El volumen interno incluye dos elementos: muros estructurales de hormigón a la vista y una cáscara de madera. El proyecto requería una residencia para una sola familia con tres hijos. El objetivo fue maximizar la superficie habitable con un mínimo de espacio de servicio. El concepto divide el espacio según los distintos programas, separando según las funciones, no por muros pero por niveles: la planta baja es para los espacios comunales, el primer nivel es el área para los niños y el segundo nivel es para los padres. Debido a que no hay sótano, la cáscara es integral para proporcional todo el espacio para almacenamiento.

Villa Criss-Cross - OFIS Architects

Villa Criss-Cross - OFIS Architects

Villa Criss-Cross - OFIS Architects

Villa Criss-Cross - OFIS Architects


Los muros se pliegan para generar armarios, estantes y cajones a lo largo de la sala de estar y a muebles como camas, asientos y mostradores integrados al suelo con el fin de optimizar el espacio y facilitar el mantenimiento. Esto conecta los distintos espacios a lo largo de la casa a proporcionar una función común a las particiones.

Villa Criss-Cross - OFIS Architects

Villa Criss-Cross - OFIS Architects

Villa Criss-Cross - OFIS Architects

Villa Criss-Cross - OFIS Architects


Los tablones de roble de Listone Giordano aportan la belleza del roble natural, gracias a su acabado con base al agua (Invisible Touch), que protege la madera manteniendo el aspecto natural y el color de una superficie sin tratar. Mientras, los elementos en chapa perforada establecen una relación directa con el exterior de la vivienda, transportando su metafórica textura al interior de la casa.

Villa Criss-Cross - OFIS Architects

Villa Criss-Cross - OFIS Architects

Villa Criss-Cross - OFIS Architects

Villa Criss-Cross - OFIS Architects

Villa Criss-Cross - OFIS Architects

Villa Criss-Cross - OFIS Architects

Villa Criss-Cross - OFIS Architects

Villa Criss-Cross - OFIS Architects

Villa Criss-Cross - OFIS Architects

Villa Criss-Cross - OFIS Architects


Arquitectos: OFIS Architects
Ubicación: Ljubljana, Eslovenia
Área: 340.0 m2
Año Proyecto: 2015
Equipo de Proyecto: Rok Oman, Spela Videcnik, Tomaz Gregoric Janez Martincic, Andrej Gregoric, Jade Manbodh, Elisa Ribilotta, Maria Della Mea, Lukasz Czech, Istvan Jenei, Dora Kljenak, Marko Gusic, Jan Celeda, Tanja Veselic, Carlos García-Almonacid, Marija Barovic, Jamie Lee, Polina Isyanyulova, Dani Kaludjerovic, Daniel Muniz Domínguez, Nika Zufic, Marta Vela, Aubin Gastineau, Catarina Cristovinho, Maria Trnovska, Estefanía Lopez Tornay, Jolien Maes, Katarina Lampic, Sabrina Cep
Ingeniería Estructural: IB TECHNO, Gravitas
Ingeniería Mecánica: Vavtar engineering
Ingeniería Eléctrica: Eurolux
Servicios Mecánicos: Vavtar Inženiring
Diseño de Iluminación: Arcadia lightwear
Carpintería Interior: Permiz
Fachada y Contratista de Ventanas: Domal
Contratista Principal de la Construcción: G&A
Fotografías: Tomaz Gregoric.


Villa Criss-Cross - OFIS Architects

Villa Criss-Cross - OFIS Architects

Villa Criss-Cross - OFIS Architects

Villa Criss-Cross - OFIS Architects

Villa Criss-Cross - OFIS Architects

Villa Criss-Cross - OFIS Architects

Villa Criss-Cross - OFIS Architects

Villa Criss-Cross - OFIS Architects

Villa Criss-Cross - OFIS Architects

Villa Criss-Cross - OFIS Architects

Villa Criss-Cross - OFIS Architects

Villa Criss-Cross - OFIS Architects

Villa Criss-Cross - OFIS Architects

No hay comentarios.

Con tecnología de Blogger.