Casa BR - KLM Arquitectos
La Casa BR esta ubicada en un barrio cerrado de la zona Norte de la provincia de Buenos Aires.
En la bĂșsqueda de lograr cierto grado de intimidad e intentando abstraerse de las muy diversas arquitecturas existentes en el barrio fue nuestra intenciĂłn crear un microclima que dio como resultado un proyecto en el que se puso mucho Ă©nfasis en controlar las visuales tanto hacia el frente de la casa como hacia ambos laterales, dando como resultado situaciones interiores que generan diversidad en los recorridos.
La disoluciĂłn de los limites interior – exterior es un objetivo buscado en este proyecto existiendo una gran variedad de visuales cruzadas tanto en los planos horizontales de ambas plantas como tambiĂ©n largas diagonales que relacionan ambos niveles atravesando diferentes espacios dando como resultado una cierta complejidad espacial.
Aparecen asi, una serie de patios interiores, unos en simple altura y otros dobles,que con diferentes proporciones se van articulando y encastrando entre interior y exterior calificando los recorridos y actuando al mismo tiempo como receptores de luz natural tanto directa como filtrada.
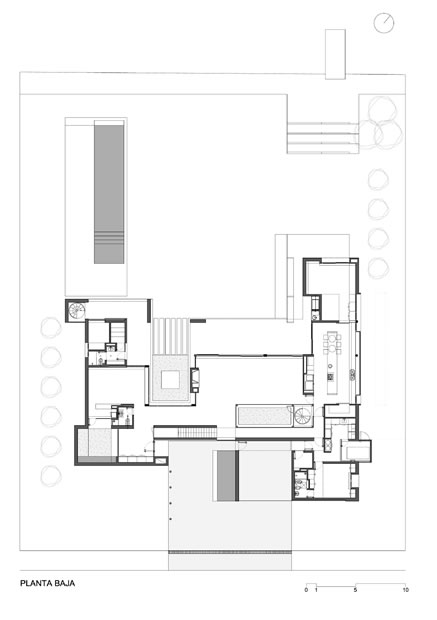
Emplazada sobre la costa del lago y en el Ășnico lote doble existente en el barrio, tiene la particularidad de contar con mayor superficie en relaciĂłn a sus vecinos inmediatos cuyas casas se ubican en lotes simples.
La estrategia proyectual parte de la clara intenciĂłn de lograr una buena inserciĂłn a nivel urbano descomponiendo los seiscientos metros cuadrados de la misma volumetricamente para lograr un juego de volĂșmenes que entren en sintonĂa con el entorno relacionĂĄndose de manera satisfactoria con la escala de las casas linderas. Las dos alturas nunca se perciben desde el frente en un mismo plano, lo cual le resta monumentalidad.
En la bĂșsqueda de lograr cierto grado de intimidad e intentando abstraerse de las muy diversas arquitecturas existentes en el barrio fue nuestra intenciĂłn crear un microclima que dio como resultado un proyecto en el que se puso mucho Ă©nfasis en controlar las visuales tanto hacia el frente de la casa como hacia ambos laterales, dando como resultado situaciones interiores que generan diversidad en los recorridos.
La disoluciĂłn de los limites interior – exterior es un objetivo buscado en este proyecto existiendo una gran variedad de visuales cruzadas tanto en los planos horizontales de ambas plantas como tambiĂ©n largas diagonales que relacionan ambos niveles atravesando diferentes espacios dando como resultado una cierta complejidad espacial.
Aparecen asi, una serie de patios interiores, unos en simple altura y otros dobles,que con diferentes proporciones se van articulando y encastrando entre interior y exterior calificando los recorridos y actuando al mismo tiempo como receptores de luz natural tanto directa como filtrada.
Organizada claramente, por un lado, en una planta baja que concentra el ocio y el servicio y por el otro, en una planta alta de carĂĄcter privado destinada al descanso volcada decididamente hacia la mejor orientaciĂłn, (por asoleamiento y por vistas) todas estas operaciones espaciales apuntan a relacionar y fundir esta estratificaciĂłn funcional generando una cohesiĂłn en el resultado final.
La monomaterialidad de la masa blanca que recorre verticales y horizontales trascendiendo los limites entre el interior y el exterior pone en evidencia unos pocos acentos dados por algunos materiales como los planos vidriados, el agua, la madera en tablas verticales de lapacho, las diferentes texturas de los patios interiores dadas por las especies elegidas, los adoquines de granito, calificando diferentes sectores respondiendo a necesidades concretas. En ese sentido la iluminaciĂłn artificial es entendida como un material mas que entra en sintonĂa con todas las demĂĄs partes intervinientes.
De los autores KLM arquitectos
























Post a Comment